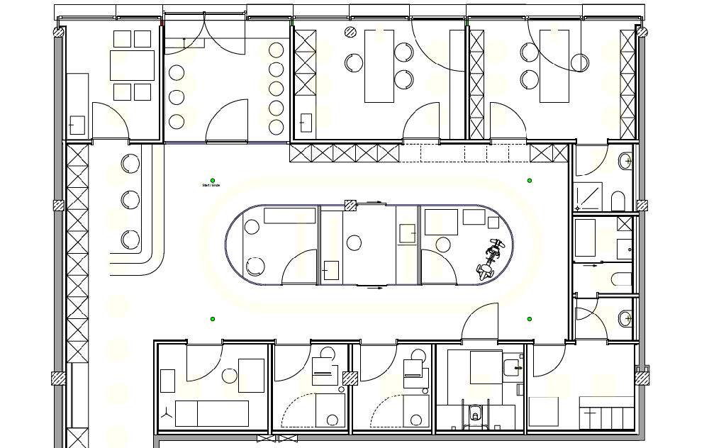
LUNGEN PRAXIS

Umbau und Innenarchitektur der Praxisräume.

 

Leistungen
Planung: Umbau · Interieur
Realisierung
2018-2019
Ort
Stuttgart
Leistungsphase
1-9
Bauherr
privat
In Arbeitsgemeinschaft mit
à propos kommunikation & design Susanne Puzicha

1/6